October 2025

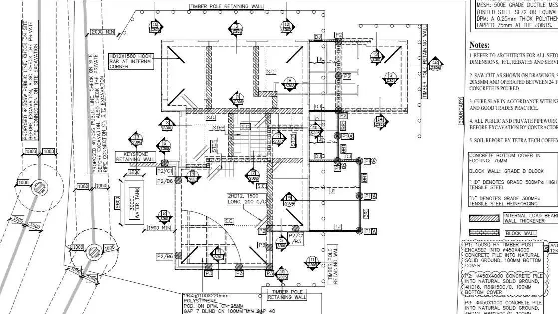
23 Waitai Close, Long Bay

Retaining Wall, Foundation, and Concrete Laying


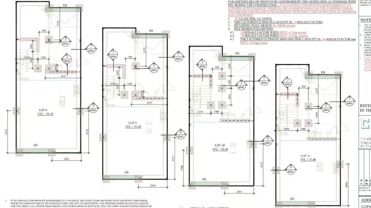
Lot 1-15, 80 Tukutata Crescent

Foundation and Concrete Laying


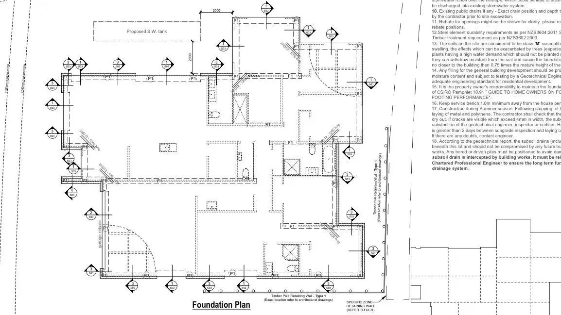
391 Te Taruna Drive

Foundation


6 Pekanga Road

Foundation and Concrete Laying

October Project Highlights: Residential Foundation Construction & Concrete Laying

23 Waitai Close, Long Bay | Multi-Level Foundation & Retaining Walls

This high-end residential project in Long Bay required a sophisticated approach to site topography. We executed a complex multi-level foundation that utilized a structural retaining wall construction as a functional step between elevations.

Our team handled the full structural scope, including:

  • Block wall footings and structural piles to ensure long-term stability on the gradient.

  • Integration of the retaining wall into the primary foundation footprint.

  • Precision concrete laying for the split-level slabs, providing a seamless transition for the upcoming build.

Lots 1–15, 80 Tukutata Crescent, Milldale | 15-Lot Multi-Unit Development

October saw the completion of a massive 15-lot residential development in the heart of Milldale. This project showcased our ability to deliver high-volume residential foundation construction without compromising on quality.

For these 15 two-story homes, we provided:

  • Standardized ribraft foundation systems across all lots for maximum thermal efficiency and strength.

  • Large-scale coordinated concrete laying schedules to keep the multi-unit development on track.

  • Consistent structural execution to meet the rigorous demands of multi-story residential building codes.

391 Te Taruna Drive, Milldale | Ribraft Foundation on Flat Terrain

At 391 Te Taruna Drive, we focused on delivering a flawless ribraft foundation for a standard flat-land residential site. While the terrain was straightforward, the engineering required precise pile placement to meet local soil requirements.

Key deliverables included:

  • Installation of structural piles to reinforce the ground stability.

  • Complete ribraft foundation construction, providing a robust, insulated base.

  • Professional concrete laying and finishing, ensuring a perfectly level slab for the framework.

6 Pekanga Road, Orewa | Stepped Foundation & Block Wall Integration

This project in Orewa involved a 2-level foundation designed to navigate the natural slope of the section. By using a reinforced block wall as a structural step, we created a stable multi-elevation platform for the new dwelling.

Our scope of work involved:

  • Specialized stepped foundation construction to transition between site levels.

  • Construction of the internal block wall step and associated footings.

  • Full ribraft foundation installation and expert concrete laying to finish the slab across both tiers.

Previous
Previous

November 2025

Next
Next

7 Tukutata Crescent, Milldale