Foundation Construction Project Highlights : December 2025

12 Bobs Way, Dairy Flat

Retaining Wall and Concrete Laying


29 Braemar Road, Castor Bay

Foundation, Retaining Wall, and Concrete Laying


15 Hayley Court, Wainui

Foundation and Concrete Laying


7 Montmere Avenue, Te Atatu

Foundation and Concrete Laying


33 Tukutata Crescent, Milldale

Foundation and Concrete Laying

December Residential Foundation Project Highlights: Advanced Engineering & Large-Scale Foundations

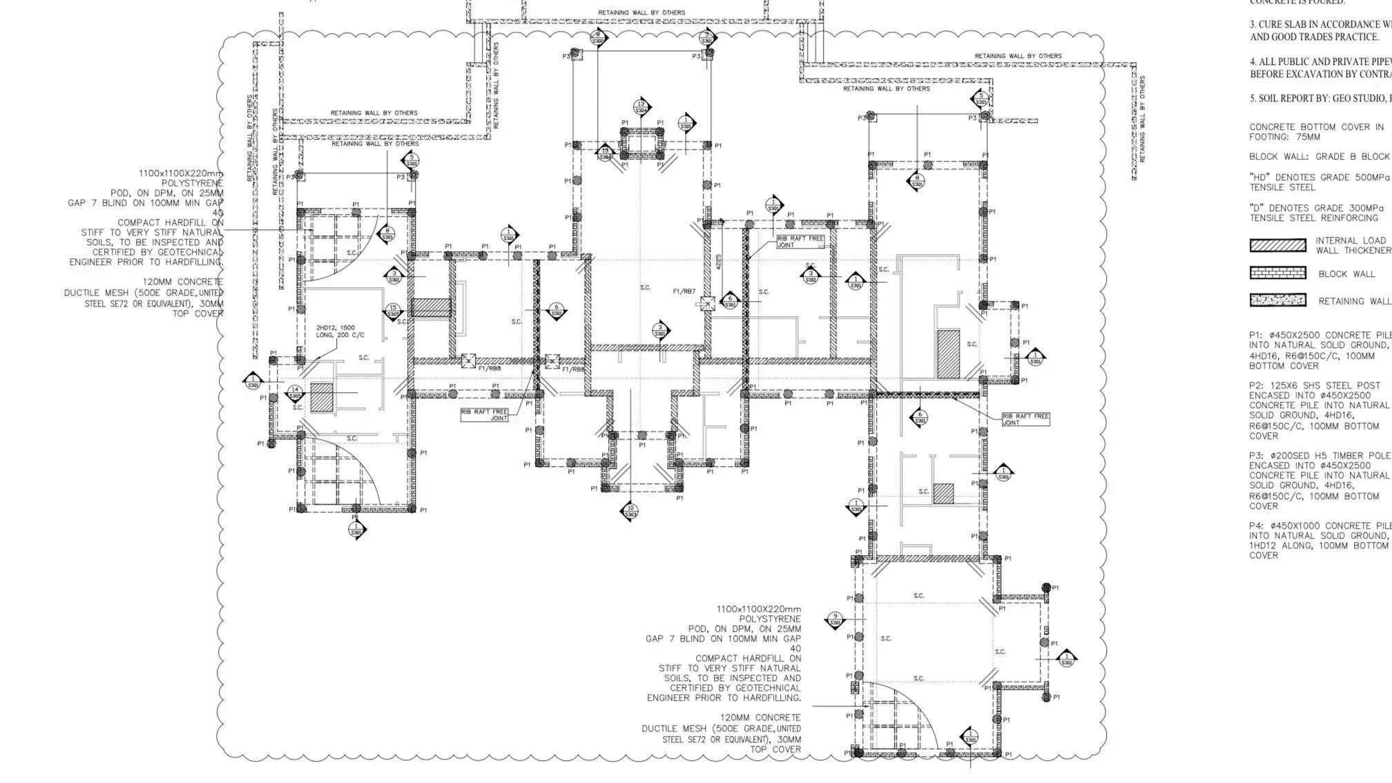
12 Bobs Way | 694m² Architectural Foundation

This project was one of our most technically demanding residential foundations to date, featuring a sprawling footprint that required immense structural reinforcement.

  • Deep Piling & Steel Fabrication: We installed over 100 deep-drilled piles, each reinforced with custom-fabricated steel cages to ensure maximum ground stability.

  • Perimeter Strength: Heavy-duty steel cages were tied and placed around the entire perimeter of the house to support the structural load.

  • Internal Structural Elements: The design included complex internal footings and specialized pads to accommodate the unique interior layout.

  • Concrete Mastery: The project concluded with a massive concrete pour and precision laying, resulting in a perfectly level, high-performance slab.

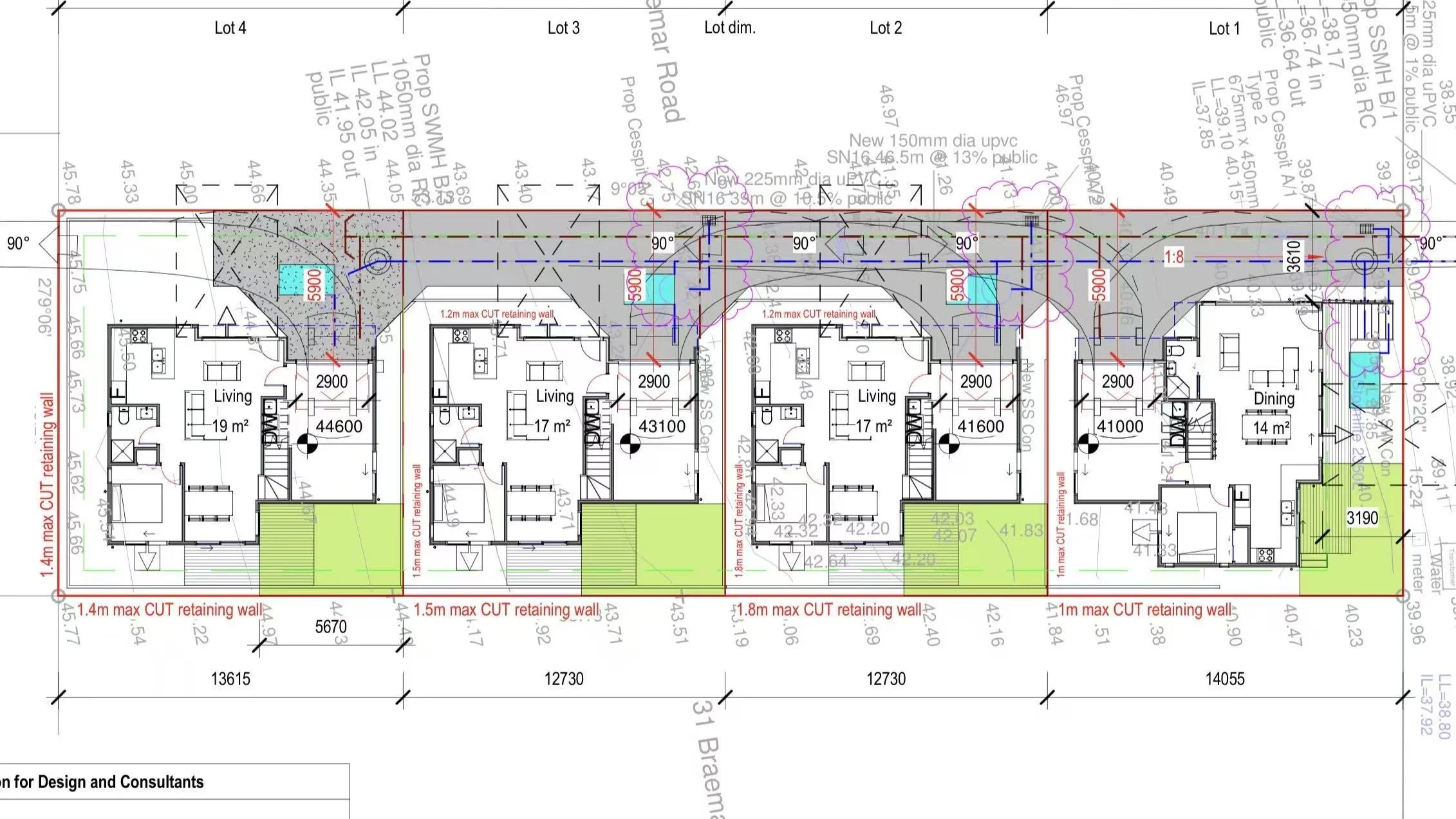
29 Braemar Road, Castor Bay | 4-Lot Subdivision Transformation

Turning a single section of land into a 4-lot development required a full suite of our civil and foundational services.

  • Retaining Wall Construction: We executed the structural retaining walls necessary to level the site and secure the boundaries between lots.

  • Sub-Floor Engineering: Every lot received concrete piles and reinforced internal footings tailored to the specific building plans.

  • Integrated Foundations: We managed the full foundation build and concrete laying for each individual lot, ensuring a seamless transition for the upcoming vertical construction.

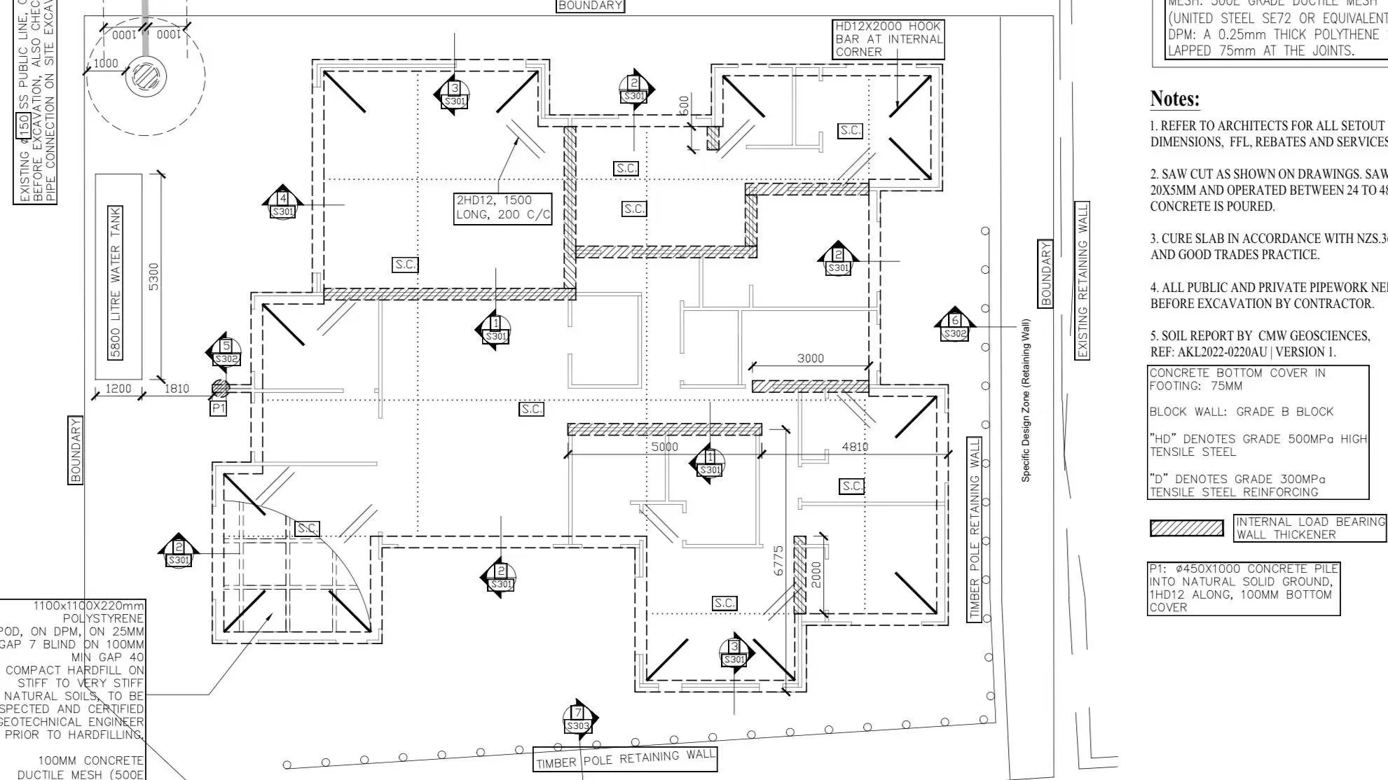
15 Hayley Court, Wainui | Complex Multi-Level Foundation

This project featured a sophisticated single-story design with five distinct finished floor levels, requiring meticulous elevation management.

  • Step Footing Expertise: We engineered and poured complex step footings to accommodate the multi-level internal layout.

  • Reinforced Block Work: The build utilized structural block walls, each requiring dedicated footings and heavy-duty steel reinforcement to support the level changes.

  • Full RibRaft System: After the structural masonry was complete, we installed a comprehensive RibRaft foundation and finished the project with professional concrete laying.

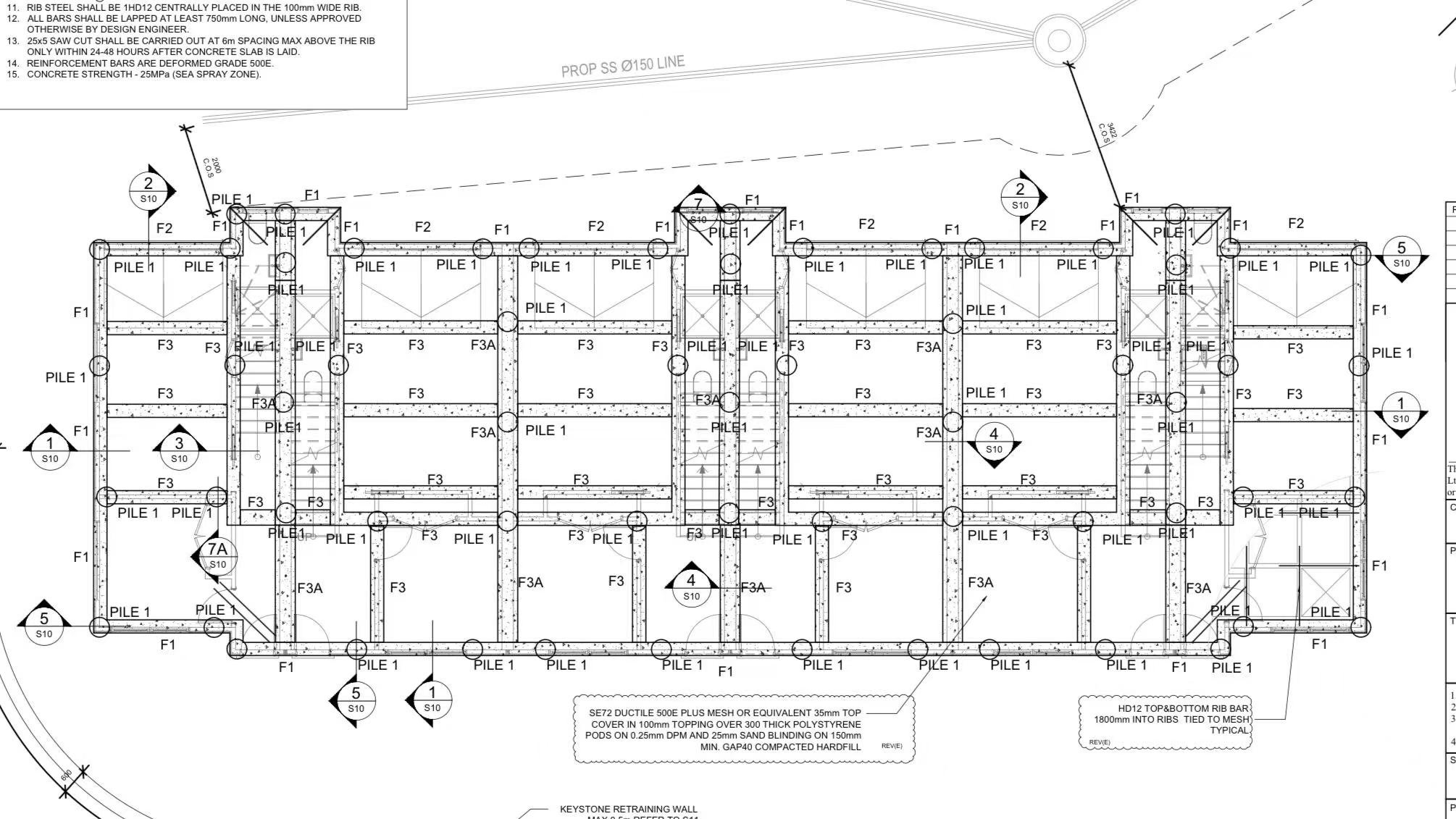
7 Montmere Avenue | 6-Townhome Multi-Unit Development

This high-density project required a single, continuous foundation to support a block of six two-story townhomes.

  • Vertical Load Support: To support the weight of the two-story structures, we drilled deep concrete piles reinforced with perimeter steel cages.

  • High-Efficiency RibRaft: We installed a massive RibRaft system across the entire site, ensuring thermal efficiency and structural longevity for all six units.

  • Total Delivery: Our team performed every stage of the process, from initial cage tying to the final concrete laying and slab finishing.

33 Tukutata Crescent, Milldale | Modern Residential Foundation

For this single-story home in Milldale, we delivered an efficient, high-quality RibRaft solution.

  • Ground Preparation: Following the initial site cut, we excavated and poured internal footings to provide a stable base for the load-bearing walls.

  • Slab Installation: We utilized a RibRaft pod system for its superior insulation and strength, placing the mesh and rebar with precision.

  • Polished Finish: The project was completed with our signature concrete laying service, providing a flawless finish for the homeowners.

Next
Next

November 2025