11 Pekanga Road, Orewa


Scope of Work

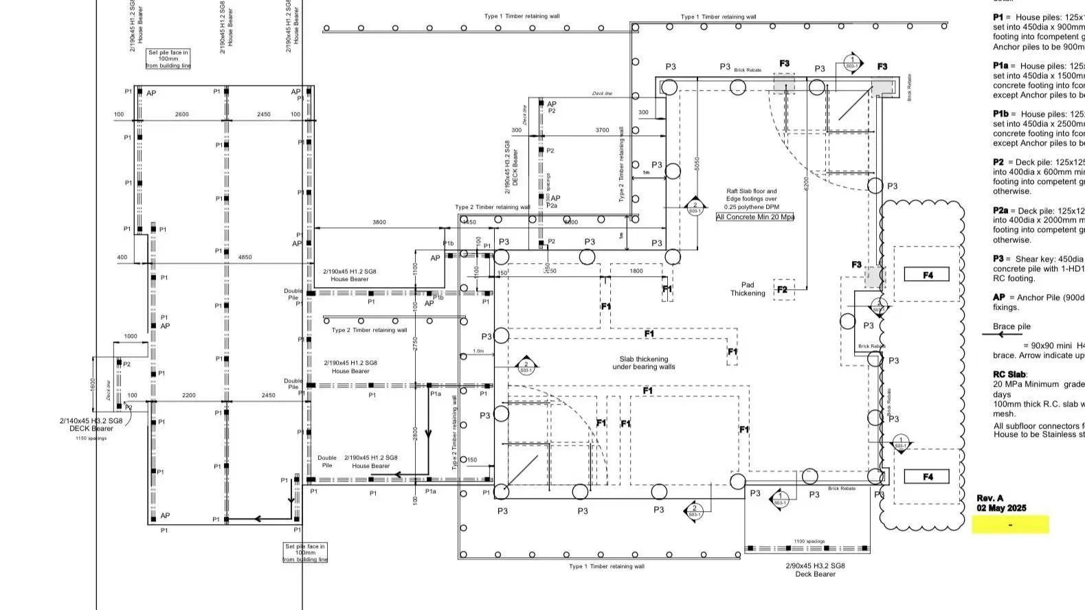
This new residential build at 11 Pekanga Road, Milldale, required a highly complex and robust foundation and structural package to accommodate its unique architectural design, including a subfloor system.

  • Structural Retaining Wall: Construction of a durable retaining wall to manage ground levels and provide stability for the site.

  • House Piles for Subfloor System: Installation of a comprehensive piling system to provide a solid and elevated foundation for the subfloor.

  • Reinforced Concrete Footings: Strategic pouring and reinforcement of concrete footings to support load-bearing walls and other structural elements.

  • Engineered Ribraft Foundation: A robust Ribraft foundation was installed for a portion of the building to ensure ground stability and structural integrity where required.

  • Internal Strip Footings: The creation of internal strip footings to support interior walls and features within the home.

  • Brick Veneer Rebate: Specialized concrete detailing to create a seamless finish for the brick veneer cladding.

  • Concrete Laying: All associated concrete placing, levelling, and finishing for the foundation, footings, and retaining wall.

Previous
Previous

17 Tukutata Crescent, Milldale

Next
Next

4 Tukutata Crescent, Milldale